SINALOA
3000 SF Altadena Rebuild + 1200 SF ADU
Altadena, CA
Rebuild
[01 Description]
When the Eaton Fire swept through Altadena, it changed everything for so many families—including the homeowners of this property. Losing your home is devastating, but it also opens up a chance to rebuild in a way that's even better than before.
That's exactly what we did here. Working closely with this family, we designed a modern home that's not just beautiful, but actually built to handle what California throws at it. The new house sits on the same lot they loved, but now it's got all the fire-resistant features and smart design choices that give everyone real peace of mind.
Yeah, it's gorgeous. But more importantly, it's safe, it's smart, and it's home.
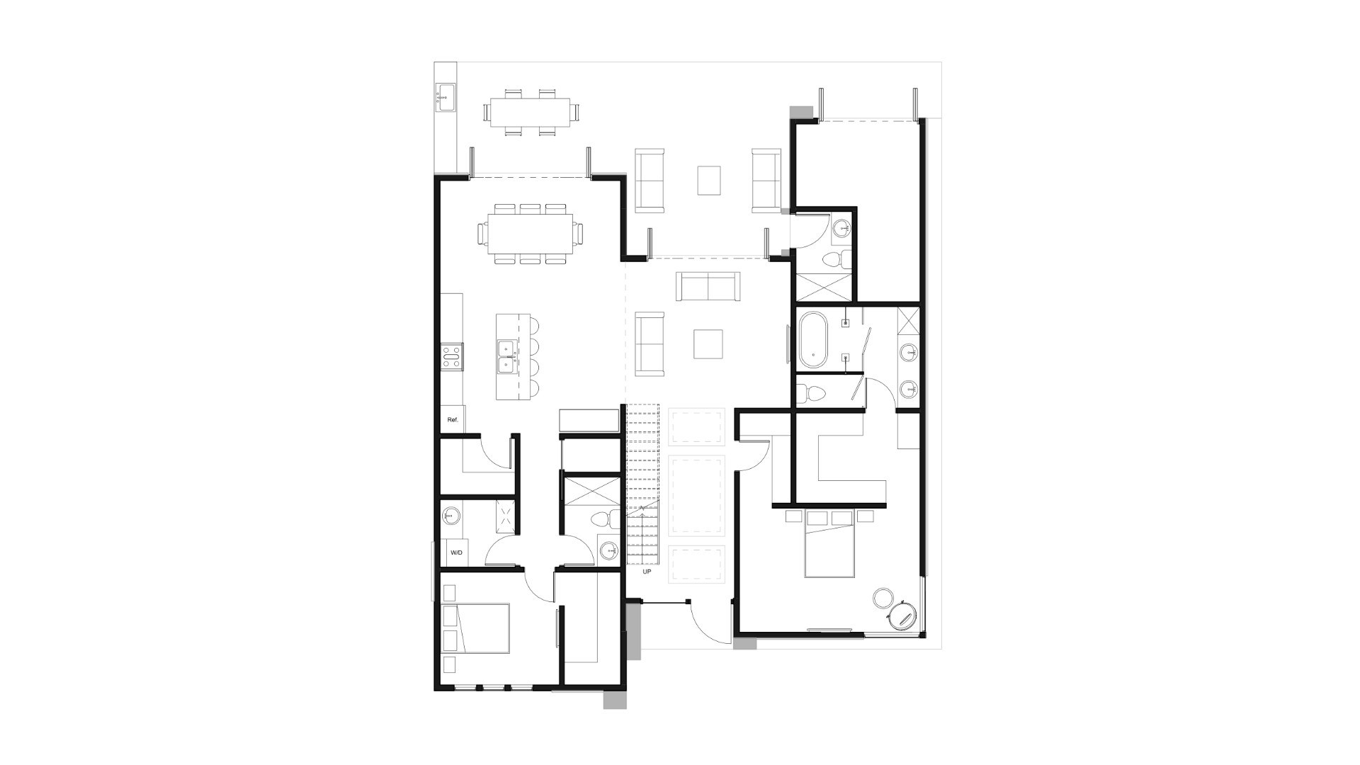
[02 Here's what we're working with]
Two Building
One Vision
[03 Story]
Rebuilding after a fire isn't like building from scratch. There's history here, memories, and a lot of emotion wrapped up in every decision. From day one, we worked with this family to figure out what their new home should feel like. What did they miss most? What had they always wanted to change? What would make them feel truly safe moving forward?
The result is this contemporary home and ADU that feel completely fresh while honoring what made this spot special. And because we're in fire country, every choice balances style with safety:
Fire-Smart Materials: Non-combustible stucco, fiber cement, and stone. Fire-resistant treated wood accents placed strategically. Class A rated roof. Tempered glass windows in ember-resistant frames.
Defensible Space: The landscaping is planned with fire-wise plants, proper spacing, and non-combustible hardscape materials.
Light and Air: Big windows, flowing floor plans, and open spaces designed for healing.
It's their story, just the next chapter—built to last.
[04 Showcase]
SFD Gallery
[05 Showcase]
ADU Gallery
[06 Materials]
We didn't mess around with materials. Class A fire-rated roofing, non-combustible siding, stone accents, metal-framed windows, fire-resistant treated wood placed strategically. Even the pavers and plants are fire-wise—drought-tolerant and less likely to ignite.
Safety doesn't mean boring though. Clean contemporary finishes, good flooring, nice fixtures, custom cabinets—the stuff that makes a house feel finished.
Since we were starting from scratch, we also built in features that make sense for California living: energy-efficient envelope exceeding Title 24, HVAC with serious filtration for fire season, LED lighting, low-VOC materials, and solar-ready roof.
[07 Comback]
This project is one of many happening across Altadena right now. The Eaton Fire hit hard, and a lot of families are rebuilding.
We're honored to be part of this family's journey. When you build back with better materials, smarter design, and real fire protection, you're not just helping one family—you're raising the bar for the whole neighborhood.
Rebuilding after a disaster is tough—insurance, permits, endless decisions, all while processing loss. We handle the technical stuff and guide families through their options without overwhelming them.



















